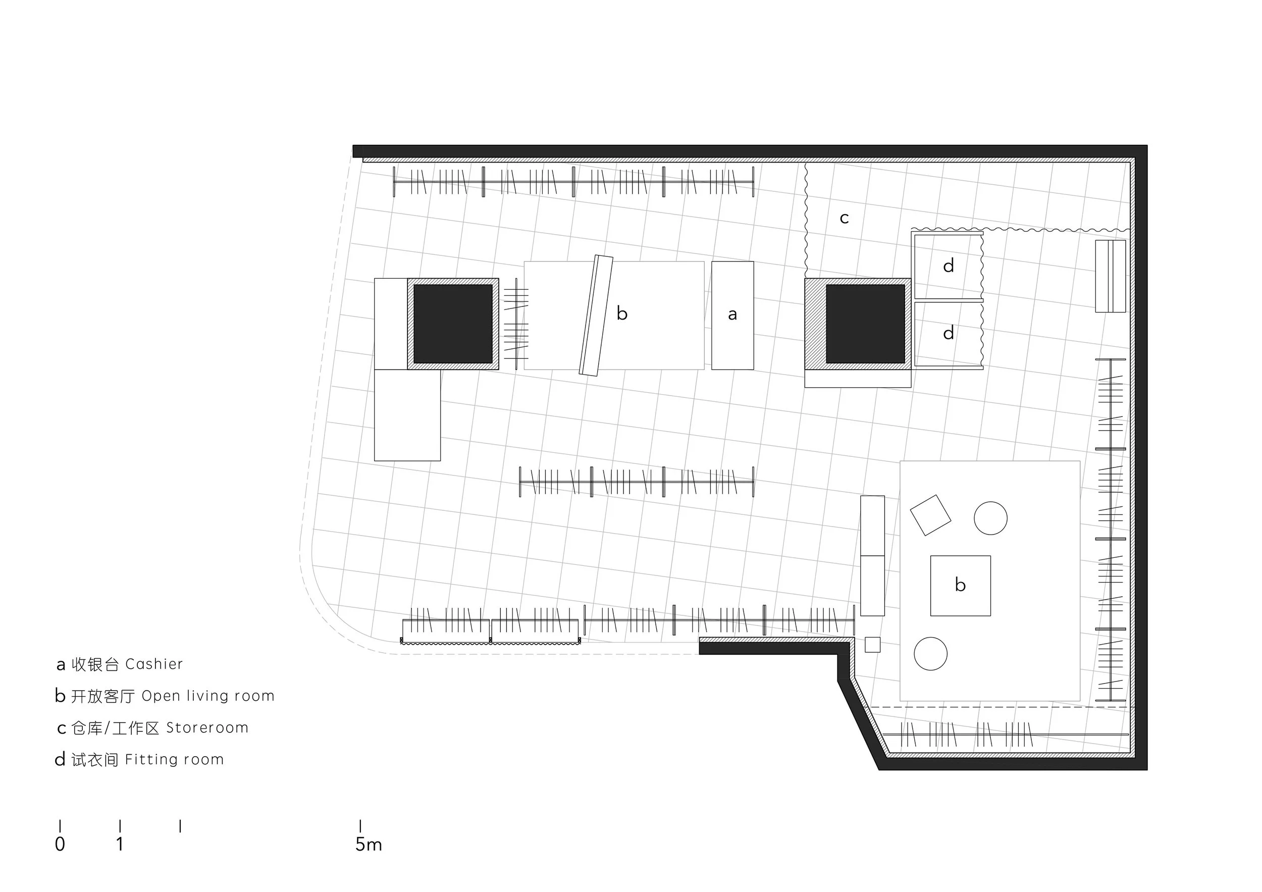
ALTERATIO K11Guangzhou K11 ,GuangzhouDecember, 2024Retail, DIY furniture110 sqm © Photography by Eki View fullsize View fullsize View fullsize View fullsize View fullsize View fullsize View fullsize View fullsize View fullsize View fullsize View fullsize View fullsize